Denah dan Model Rumah Minimalis Modern Idaman

CONTOH DENAH RUMAH SEDERHANA 2 LANTAI MINIMALIS

Contoh denah rumah sederhana 2 lantai minimalis - Desain mengenai denah rumah sederhana 2 lantai pd materi berikut akan admin pilih oleh karena sesuai dng bahasan hari ini mengenai denah ukuran rumah. Pada posting dibawah anda bisa temukan aneka model yang kami lihat inspiratif dan mungkin dpt bermanfaat. Berikut beberapa contoh denah ukuran rumah yang kami nilai terlihat inspiratif. Menurut kami artikel contoh denah rumah sederhana 2 lantai minimalis adalah sebuah ide yg berguna dan seringkali banyak juga yang memerlukannya. Pada konten berikut terdapat bermacam foto yang barangkali bisa menginspirasi anda pada denah rumah sederhana 2 lantai minimalis. Kami harap pengunjung bisa dapatkan inspirasi yang baru

Desain denah rumah sederhana 2 lantai tampak minimalis

Pada photo denah ukuran rumah minimalis dibawah ini, kami rasa memiliki nilai kreatifitas tersendiri serta terlihat unik. Materi yang dimuat pada 30 Apr 2017 kali ini baik berupa gambar atau sejenis yg lain sekedar hanya untuk informasi saja.
Baca juga: denah rumah 8x10 m 2 lantai
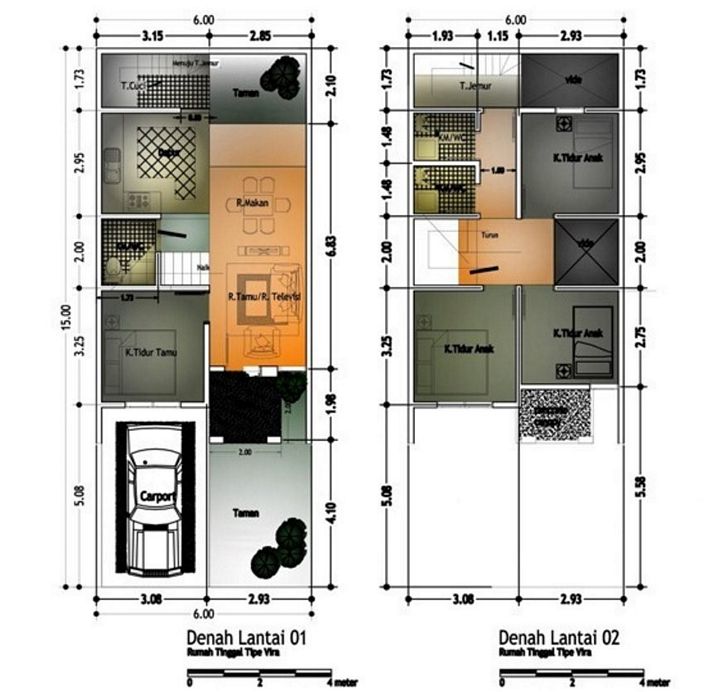
denah rumah sederhana 2 lantai minimalis
denah rumah sederhana 2 lantai minimalis
denah rumah sederhana 2 lantai tampak minimalis
denah rumah sederhana 2 lantai tampak minimalis

Ide denah rumah sederhana 2 lantai yg bagus

Bila memanglah diperlukan konsultasikan pada yang ahli di bidangnya. Bersikap dng bijak dalam menyimak konten yang dipublikasikan dalam modelrumahe.com. Mudah-mudahan sajian dengan tema denah rumah sederhana 2 lantai minimalis dibawah bisa menambah inspirasi untuk pembaca. Kadang-kadang seseorang juga perlu sesuatu inspirasi dalam kreatifitasnya untuk bisa ditambahkan pada rancangannya. Oleh Sebab itu modelrumahe.com bagikan beberapa model denah ukuran rumah yang barangkali sesuai yang dibutuhkan. Jangan lewatkan untuk melihat gambar-gambar denah ukuran rumah yang lain pada ide modelrumahe.com sebelumnya.

denah rumah sederhana 2 lantai yg bagus
denah rumah sederhana 2 lantai yg bagus
denah rumah sederhana 2 lantai menarik
denah rumah sederhana 2 lantai menarik

Silakan search pada situs kami untuk kontent mengenai denah ukuran rumah yg sdh kami share sebelumnya. Kunjungi kami di kesempatan lainnya utk sekilas menyimak beberapa update terbaru pd modelrumahe.com ini. Terima-kasih sudah mengunjungi posting "contoh denah rumah sederhana 2 lantai minimalis" kesempatan ini, mudah-mudahan bermanfaat.

Terkait denah rumah sederhana 2 lantai:

Sekiranya memang berguna, bagikan materi 30/04/2017 ini ke sosial media. Kami harap posting berikut bisa menambah wacana buat pembaca.

CONTOH DENAH RUMAH SEDERHANA 2 LANTAI MINIMALIS Diposkan Oleh: Admin